Can Lis, Jørn Utzon (1974) – Mallorca

Casa Josef Stein – Blog

Can Lis (1971–72): Jørn Utzon, piedra, luz y viento en la costa de Mallorca

Can Lis, la casa que Jørn Utzon construyó para su familia en Porto Petro, es una lección de arquitectura elemental: el proyecto se resuelve con piedra marés, muros portantes y una cadena de pabellones que se escalonan frente al Mediterráneo. Lejos de cualquier gesto monumental, Utzon trabaja con la topografía y con el clima isleño para orquestar sombra, brisa y vistas. La vivienda no es un objeto aislado, sino una secuencia de espacios exteriores e interiores que modulan la vida entre la roca y el mar.

Can Lis vista aérea: implantación en acantilado y pabellones escalonados

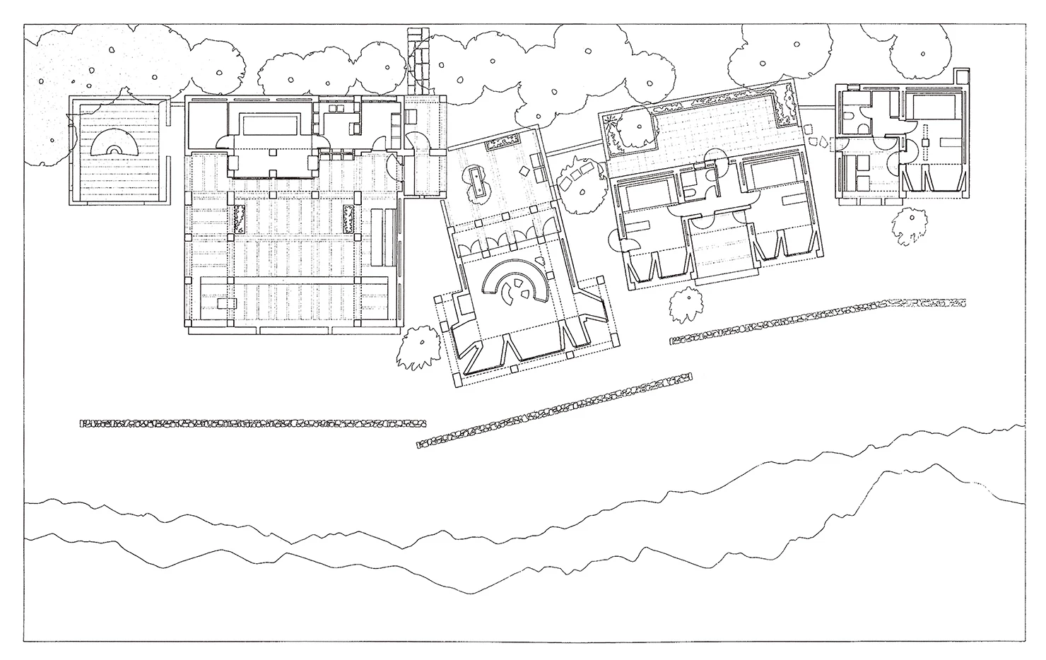
Implantación y lectura del lugar

La parcela rocallosa, expuesta al sureste, obliga a responder a tres cuestiones: orientar la vida al horizonte, filtrar la radiación y amortiguar el viento. Utzon coloca los volúmenes como pequeñas piezas autónomas que nunca tocan el borde, manteniendo la vegetación y los intersticios como filtros. El trazado no es axial: se avanza por umbrales y patios donde la sombra es la primera materia del proyecto.

Acantilado de Porto Petro con Can Lis asentada sobre la roca Volúmenes de piedra marés y porches orientados al mar en Can Lis

Sistema de pabellones

La casa se organiza como cuatro piezas enlazadas por porches y patios: estar, comedor-cocina, dormitorios y servicios. No hay un “gran salón” sino salas específicas que permiten usar la casa de forma estacional. Esta fragmentación controla la escala, facilita la ventilación cruzada y crea recorridos oblicuos que van descubriendo el mar a distintas alturas. En términos estructurales, cada pieza es un prisma de muros portantes de marés con pequeñas luces y huecos hondos.

Estudios y esquemas de Can Lis con variaciones de planta y patios Esquema de implantación de Can Lis entre pinos y plataformas Planta general de Can Lis mostrando los cuatro pabellones

Materialidad y construcción

El marés —caliza local— define estructura, acabado y atmósfera. Los muros se aparejan con una modulación constante; dinteles, bancos y encuadres se tallan en la misma pieza, reduciendo capas y mantenimiento. Los suelos cerámicos, las carpinterías retraídas y las cubiertas planas minimizan la silueta y permiten que la luz resbale sobre la piedra. La obra es casi cantería habitada: precisión de juntas, aristas controladas y masa térmica que estabiliza el interior.

Espacio circular con banco corrido en Can Lis, luz cenital sobre piedra marés Umbral vertical de piedra con contraluz cálido en Can Lis

Luz, sombra y apertura

La relación con el exterior se regula con umbrales profundos, celosías pétreas y huecos encajonados. La luz entra rasante, lee la textura del marés y cambia el tono de las estancias a lo largo del día. Utzon prefiere abrir a patios y pórticos antes que usar grandes paños de vidrio: así evita el deslumbramiento y deja que la brisa atraviese la casa. Los porches se convierten en habitaciones exteriores donde comer, leer o dormir en verano.

Patio soleado con sombra filtrada y banco de piedra en Can Lis Paso estrecho entre muros de marés que conecta pabellones en Can Lis Galería interior en piedra marés con luz controlada en Can Lis

Equipamiento, domesticidad y oficio

El mobiliario se integra en la fábrica: bancos, estantes y mesas emergen de los muros como parte de la arquitectura, reduciendo el número de piezas sueltas y reforzando la continuidad material. La cocina-hogar y los focos de calor se colocan donde mejor ventila; los dormitorios admiten cierres parciales según estación. El conjunto demuestra que la calidad ambiental no depende de la tecnología, sino de la buena posición, el espesor y el control del sol.

Porche cubierto con óculo circular que enmarca el cielo en Can Lis Detalle interior: encimera y banco de piedra tallada en Can Lis

El tiempo como material

Al atardecer, la casa cambia de régimen: la piedra adquiere tonos ámbar y los porches se vuelven linternas abiertas al paisaje. La arquitectura se desdibuja en la penumbra y solo permanecen los ritmos —el módulo de los muros, los huecos, las sombras—. Can Lis no compite con el horizonte: lo enmarca y lo habita con la mínima expresión de medios.

Can Lis al ocaso con la casa emergiendo entre pinos Patio nocturno iluminado, textura cálida de la piedra en Can Lis Acceso a Can Lis al anochecer con porche encendido Fachada de Can Lis por la noche: ventanas como faroles sobre la roca

Lecciones de proyecto

Can Lis es una síntesis de oficio y paisaje. Enseña a proyectar con masa térmica, a preferir el porche al vidrio continuo, a fragmentar el programa para construir clima y a entender el mobiliario como arquitectura. La casa confirma una idea central de Utzon: la forma no se impone, emerge de la topografía, el material y la vida que la habita.

Fuentes: ArchDaily – AD Classics: Can Lis; Utzon Center – Can Lis.
Créditos: Fotografías según propietario de los archivos aportados por el cliente. Planimetría y diagramas, donde aparecen, con fines ilustrativos.

Explora más arquitectura esencial:

Comentarios

Deja una respuesta

Tu dirección de correo electrónico no será publicada. Los campos obligatorios están marcados con *