Tate Britain, C. St. John, 2013 – Londres

Casa Josef Stein – Blog

Tate Britain, Caruso St John (2013) – Renovación magistral y rotonda espectacular

La transformación de la Tate Britain emprendida por Caruso St John repara, actualiza y vuelve legible uno de los museos más importantes de Londres. El llamado Millbank Project no es una reforma cosmética: es un reordenamiento estratégico que clarifica accesos, reabre la rotonda como centro cívico, mejora la accesibilidad universal y oculta una nueva infraestructura ambiental que garantiza conservación y confort sin ruido visual. El método es riguroso: precisión constructiva, respeto a lo existente y adición de piezas que suman continuidad histórica.

Tate Britain – fachada neoclásica en Millbank tras la transformación de Caruso St John

Acceso, orientación y la nueva coreografía del visitante

La llegada desde Millbank conduce ahora sin fricciones al corazón del edificio. El trazado de entradas, guardarropas, control y café se ha pensado como una coreografía suave que evita cruces y esperas. La rotonda, bajo la cúpula, vuelve a ser un espacio público donde orientarse, quedar y mirar, con una escalera helicoidal que desciende al nivel inferior para activar usos antes residuales.

Tate Britain – pórtico y arquerías interiores restauradas por Caruso St John Tate Britain – mostrador de acceso en piedra y madera junto a columnas

La rotonda: eje cívico y oportunidad espacial

La rotonda concentran la identidad del proyecto. Se limpia, se devuelve la luz cenital y se rediseña el suelo con un mosaico geométrico que dialoga con la tradición del museo. La nueva escalera, de giro elegante, articula la relación con la planta inferior, donde se ubican café, aseos y servicios, y transforma el descenso en parte de la experiencia. El resultado: un atrio contemporáneo que no compite con lo histórico, lo afina.

Tate Britain – rotonda central reabierta bajo cúpula iluminada Tate Britain – mosaico de suelo con patrón geométrico en la rotonda Tate Britain – rampa y escalera curva de conexión entre niveles Tate Britain – sala polivalente con mobiliario y luces suspendidas Tate Britain – nicho y linterna con estuco restaurado

Luz, clima y confort

La intervención actualiza la envolvente y la iluminación sin caer en protagonismos. Se reparan lucernarios y se introducen capas difusoras y mecanismos de control solar; la climatización se integra en zócalos y cornisas con rejillas casi invisibles. De este modo, la colección goza de estabilidad ambiental y el público de un confort amable, preservando la lectura silenciosa de salas encadenadas —la clásica enfilade— que vuelve a ser clara y continua.

Tate Britain – galería superior con lucernarios longitudinales Tate Britain – galería con luz cenital y mobiliario de descanso Tate Britain – sala íntima con mobiliario y luz filtrada Tate Britain – detalle del mosaico histórico restaurado

Materialidad y oficio

Caruso St John trabaja con una paleta británica y atemporal: piedra, yeso, mármol, madera y latón. Se restauran cornisas, pavimentos y carpinterías con criterio arqueológico, y se introducen piezas nuevas con una sobriedad que rehúye lo pintoresco. La calidad del proyecto reside en esa mezcla de normalidad exquisita, donde lo cotidiano —guardarroperos, mostradores, aseos— está diseñado con el mismo cuidado que las grandes salas.

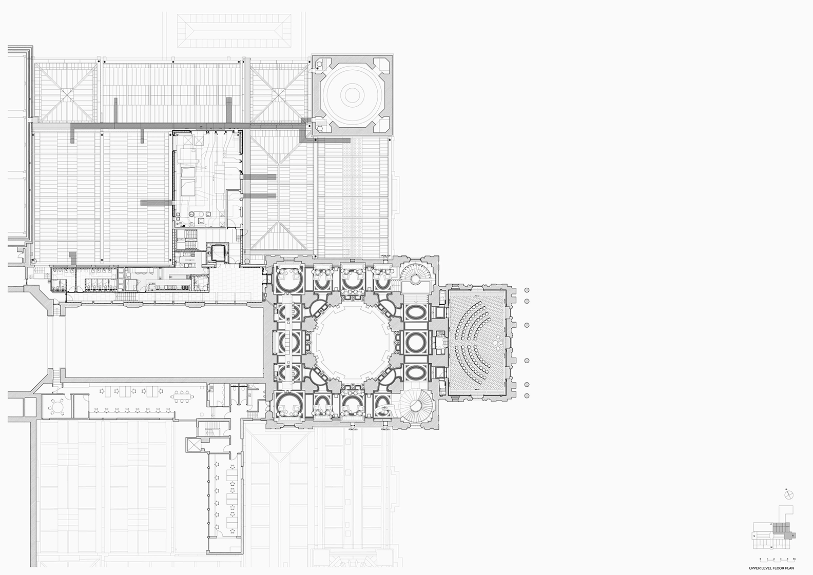
Planimetría y técnica

Los planos evidencian la estrategia: limpiar ejes, concentrar servicios, mejorar circulaciones y reforzar la relación vertical en torno a la rotonda. Las secciones muestran el diálogo entre lo existente y los nuevos dispositivos de luz y clima, mientras que los alzados confirman una actitud respetuosa hacia el conjunto histórico. La intervención es cirugía más que sustitución: mínima en apariencia, decisiva en rendimiento.

Tate Britain – plano de planta del nivel principal con rotonda central Tate Britain – plano de planta del nivel inferior con servicios y café Tate Britain – plano de planta de conexión y accesos Tate Britain – sección general con rotonda y escalera helicoidal Tate Britain – sección transversal de galerías con lucernarios Tate Britain – sección longitudinal del conjunto Tate Britain – alzado del acceso de Millbank con pórtico Tate Britain – lámina con detalles constructivos y mobiliario fijo Tate Britain – diagramas y detalles de intervención Tate Britain – planos técnicos adicionales y piezas especiales Tate Britain – planos complementarios de la transformación

Accesibilidad, uso diario y mantenimiento

La intervención de Caruso St John no solo renueva un icono; mejora de forma tangible la vida del edificio. La nueva escalera helicoidal bajo la rotonda resuelve la conexión con las plantas inferiores y dirige el flujo de visitantes sin barreras, mientras los ascensores integrados y los itinerarios nivelados hacen accesibles las galerías históricas. Los mostradores, bancos y guardarropas se diseñan como mobiliario permanente, resistentes y medidos, para soportar intensidades de uso muy distintas —desde visitas escolares hasta inauguraciones— sin invadir la lectura del conjunto. La restauración de pavimentos y zócalos, y la elección de acabados minerales de alta durabilidad, reducen el mantenimiento y devuelven al vestíbulo su condición de espacio cívico robusto.

También se actualiza la infraestructura invisible: climatización más eficiente, nuevas redes eléctricas y una iluminación que combina cielo difuso, lámparas puntuales y lavados rasantes para poner en valor el yeso y la piedra. El resultado es un ambiente luminoso, confortable y estable que permite a la colección mostrarse en condiciones óptimas todo el año, con un consumo controlado y sin artificio escénico.

Recepción y lecciones

La crítica ha subrayado la precisión con la que la obra reconcilia lo ceremonial y lo cotidiano: entrar al museo vuelve a ser un acto, pero el recorrido funciona con naturalidad en días de alta afluencia. La estrategia ofrece una enseñanza aplicable a otras rehabilitaciones patrimoniales: intervenir con capas claras —estructura, luz, circulación—, aceptar la memoria sin mimetizarla y construir un fondo sereno para el arte. La Tate Britain gana un acceso legible, un sistema de circulaciones más amable y una atmósfera coherente con su historia; en definitiva, una arquitectura que ordena, acoge y perdura.

Conclusión

La Tate Britain renovada por Caruso St John demuestra que la mejor arquitectura para un museo histórico no es la que ocupa el plano, sino la que permite que el arte y la gente sucedan. Con una rotonda que vuelve a ser ciudad, una secuencia de salas continua y un soporte técnico invisible, el proyecto convierte un edificio venerable en una máquina hospitalaria para el presente. Es una lección de medida, paciencia y oficio: intervenir poco para transformar mucho.

Fuentes: Caruso St John Architects – Transforming Tate Britain (Millbank Project) .
Créditos: Caruso St John Architects / Tate Britain (atribuir autores de fotografía al subir las imágenes).

Explora más arquitectura esencial:

Comentarios

4 respuestas a «Tate Britain, C. St. John, 2013 – Londres»

  1. […] en la línea de otras obras que integran programa y atmósfera, como la reforma del Reichstag o la Tate Britain, donde la estrategia espacial ordena la […]

  2. […] que convierten condiciones técnicas en identidad —la cúpula-máquina del Reichstag o la Tate Britain— y subraya una idea: el servicio público también puede ser arquitectura […]

Deja una respuesta

Tu dirección de correo electrónico no será publicada. Los campos obligatorios están marcados con *